Social Brewery

In Japan, water embodies history, traditions, idiosyncratic cultural rituals, and industrial mechanisms. The symbolic aspect of water lies in the importance that bodies of water have both on a human scale, the urban scale, and everything in between. However, there is a contradictory manifestation of water in Tokyo. On one hand, it is celebrated through the preservation of ponds, gardens, and temples. On the other hand, water has disappeared from underground rivers and streams.
What are the possibilities if a city uses water as a part of an urban infrastructure that contributes to the leisure and pleasure of the community? Ueno encapsulates this spirit of reclaiming through its Ueno Zoo and Shinobazu Pond as public urban insertions in the midst of the city. For this reason, water can become the mediator in this tight urban context by proliferating throughout Nezu in distinct scales and typologies.
This project explores the interweaving between the experiential, didactic, and infrastructural aspects of water in the context of Ueno. In distinct scales, the presence of water is reinvigorated as a catalyst for the community through working alongside day-to-day activities.
Typology: Public Space for Leisure
Program: Pool + Community Gathering
Scale: ~18,000 square meters (site area)
Material: Structural/lightweight mesh, steel framing
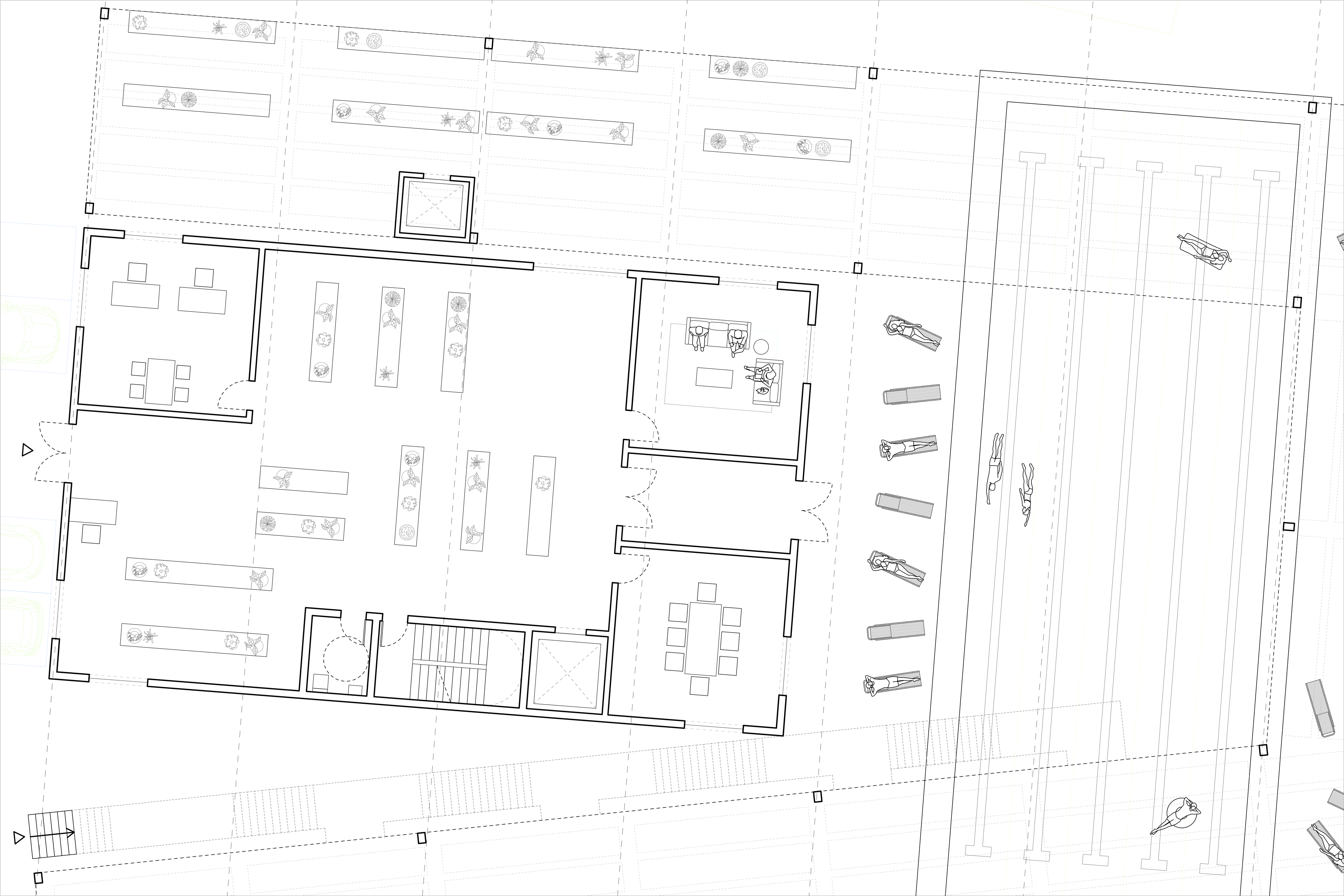
The intervention (shown in white) creates an urban pocket for the community centered around water while preserving the existing
The existing plays a role in this project, the Bonsai Tree Association and Shop is integrated with the program of the community pool
In section, the weaving of the existing and new programs are seen: the Bonsai Tree display for the existing shop alongside the pool and the toilets in proximity to someone sun bathing. These interventions displaced throughout the Ueno propose a casual encounter with water
The facade of the building is a continuous mesh that allows sun to permeate while still being semi-enclosed with some opacity
Text and images © Jeannelle Fernandez, 2024
This project was conducted as part of “Rethinking Metabolic Rift: Tokyo: Architecture Between Scales and Typologies”, a spring 2024 studio at the Harvard GSD. Please click here to read more about this studio and see other projects.